
CABINET CONSEILS
Transformez votre espace en un lieu qui vous ressemble grâce à notre expertise en décoration et architecture d'intérieur.
La Maison de Baba est née avant tout d'une passion pour l'aménagement et la décoration.
Je vous propose mes services de décoratrice d'intérieur sur mesure, alliant esthétique et fonctionnalité pour créer des espaces uniques qui reflètent votre personnalité. Que
ce soit pour une résidence principale ou un logement destiné à la location saisonnière, chaque projet est abordé avec créativité et attention aux détails.
Mon objectif est de vous aider à créer des espaces uniques, que ce soit pour y vivre ou pour attirer des locataires. Contactez-moi pour discuter de votre projet et donner vie à vos idées !
Nos services
Visite Conseils
La visite conseil en décoration est une expérience personnalisée où un professionnel se rend directement chez vous pour évaluer votre espace et comprendre vos besoins. Lors de cette rencontre, les envies, le style et les objectifs de décoration seront discutés.
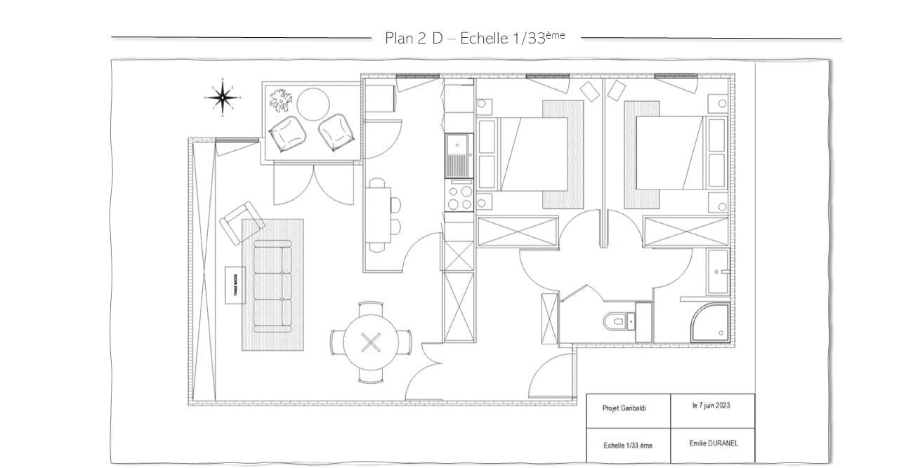
Plan 2D/ Aménagement
Des plans 2D fournissent une représentation claire des dimensions de votre espace, permettant une compréhension précise de l'agencement.
Nous créons ces plans en utilisant soit les cotations et photos que vous nous avez fournies, soit en prenant directement les mesures chez vous.
Moodboard /Planche tendance
La moodboard est un outil essentiel dans le processus de décoration. Elle permet de rassembler vos idées, inspirations et émotions visuelles en un seul endroit. Grâce à une sélection de couleurs, de textures, de matériaux et d’images, la moodboard vous aide à visualiser l’ambiancesouhaitée pour votre projet.
Rendus réalistes
Pour vous aider à visualiser le résultat final avant la réalisation, nous utilisons des logiciels de conception 3D. Cette approche vous permet de comprendre clairement l’agencement, les volumes et les choix de décoration, tout en vous offrant la possibilité, d'ajuster chaque détail selon vos envies à travers des rendus réalistes.
Shopping list
Retrouvez toute la liste du mobilier et de la décoration évoqués en RDV. Des liens pour chaque article vous sont fournis. Ne reste plus qu'à vous laisser guider.

Moodboard

Plan 2D

Rendus réalistes

Décoration spéciale investissement locatif

Shopping List
Quelques exemples de nos réalisations
Aménagement T4 destiné à la location saisonnière


Résultat


Rénovation totale T2 destiné à la location saisonnière




Rénovation T2 destiné à la location saisonnière



